Eingangsbereich
No items found.
Gallerie ansehen

Büro/Lager mit WC und großen Fensterfronten

Eisenach
,
99817
Preis
360 €
Kaltmiete
56 m²
Gesamtfläche ca.
Wohnfläche ca.
Grundstück ca.
Zimmer
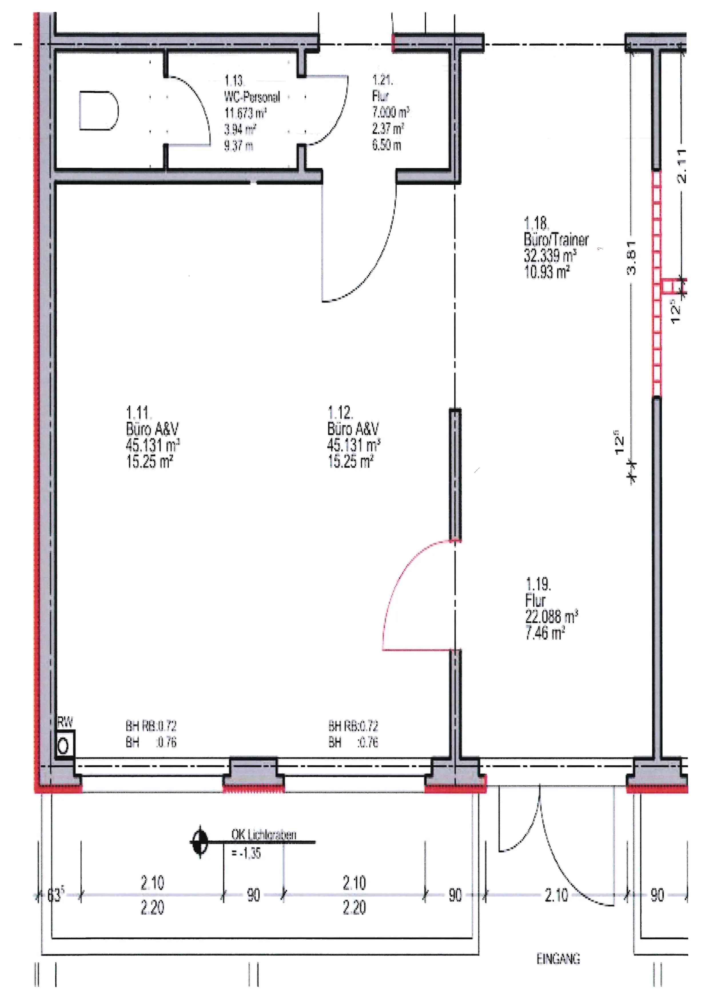
Hierbei handelt es sich um ein kleines, ebenerdiges Gewerbeobjekt mit Schaufensterfront in einem Geschäftshaus in Eisenach Nord. In dem Gebäude befinden sich bereits Ärzte, Physiotherapie, Apotheke und ein Fitnessstudio.

Fakten

Typ
Sonstige Immobilien
Baujahr
Alt-/Neubau
Zimmer
Wohnfläche ca.
Gesamtfläche ca.
56 m²
Etage
1
Etagenanzahl
3
Grundstücksfläche ca.
Preis
Kaltmiete
360 €
Warmmiete
Käuferprovision
1,19 NKM
Verfügbar ab
01.04.2026
Immobilien-ID
130825919

Ausstattung

Zur Gewerbeeinheit gehört ein innliegendes WC mit Vorraum, eine Abstellmöglichkeit sowie eine Nische für Garderobe.

Lage

Eisenach
,
99817
Die vollständige Adresse ist im Exposé einsehbar.
In unmittelbarer Umgebung der Immobilie finden sich diverse Einkaufsmöglichkeiten, Restaurants und öffentliche Einrichtungen. Die Anbindung an das öffentliche Verkehrsnetz ist sehr gut, sodass die Praxisfläche bequem zu erreichen ist. Eisenach selbst ist eine historische Stadt in Thüringen mit einer reichen Kultur und Geschichte. Die Stadt bietet eine Vielzahl an kulturellen Angeboten, Sehenswürdigkeiten und Freizeitmöglichkeiten. Durch die gute Verkehrsanbindung an Autobahnen und öffentliche Verkehrsmittel ist Eisenach ein attraktiver Standort für Unternehmen und Praxen. Die Region um Eisenach zeichnet sich durch ihre natürliche Schönheit aus, mit malerischen Landschaften und zahlreichen Wander- und Radwegen. Zudem lockt die Nähe zum Thüringer Wald und anderen Erholungsgebieten viele Besucher an. Die Gegend bietet somit ideale Bedingungen für Erholungssuchende und Naturfreunde.

Grundrisse

No items found.
Silke Sommer - Inhaberin der Makleragentur Sommer Immobilien in Ihrem Büro Lutherplatz 6 in Eisenach

Silke Sommer

Ihre Ansprechpartnerin
Thank you! Your submission has been received!
Oops! Something went wrong while submitting the form.
Preis
360 €
Kaltmiete
56 m²
Gesamtfläche ca.
Wohnfläche ca.
Grundstück ca.
Zimmer