Wohnzimmer
No items found.
Gallerie ansehen

In der Lichtstadt Jena wohnen - gemütliche 3-R-ETW mit Balkon im Zentrum

Jena
,
07749
266.000 €
Preis
Kaltmiete
Gesamtfläche ca.
73 m²
Wohnfläche ca.
Grundstück ca.
3
Zimmer
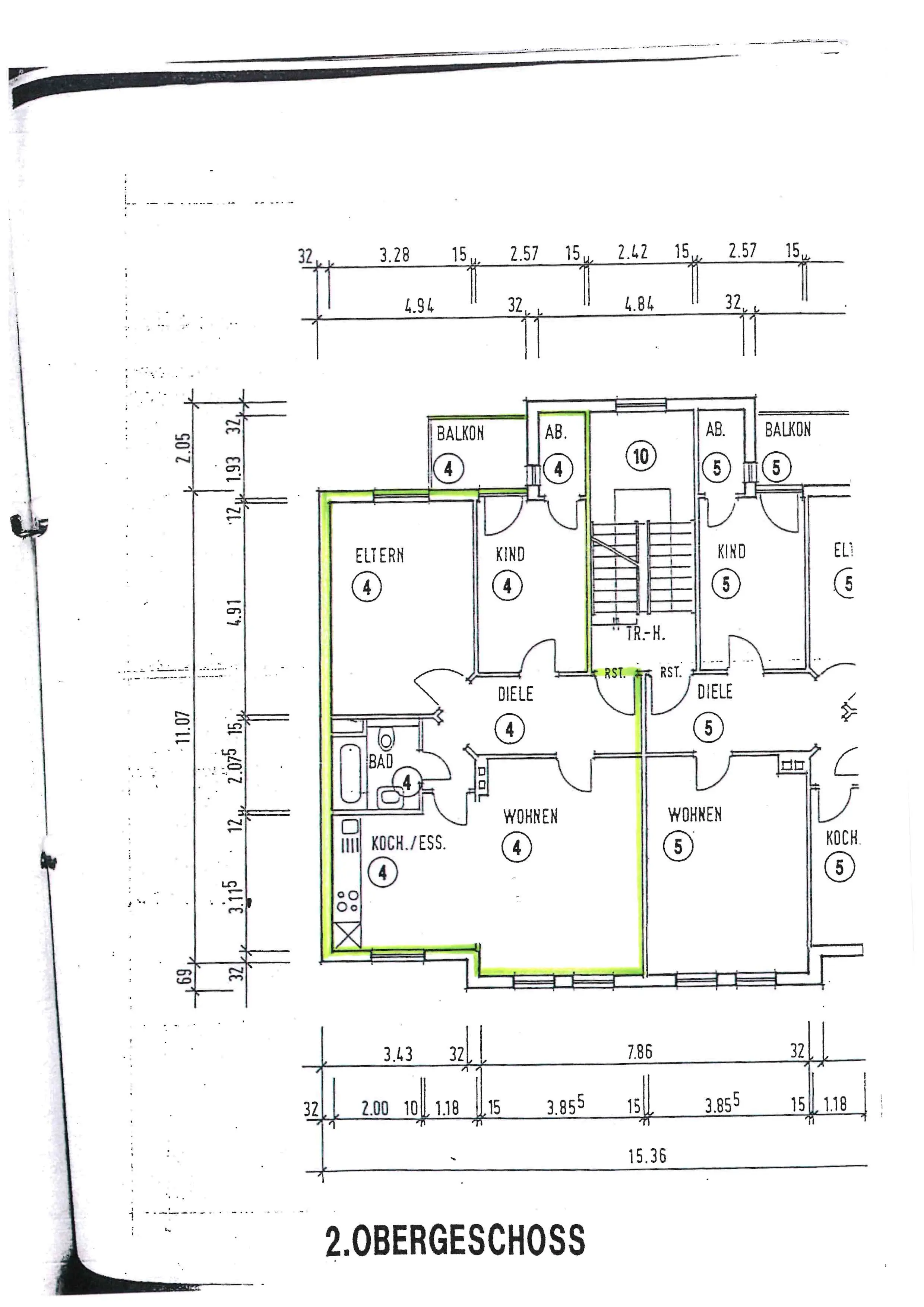
Diese hier angebotene Eigentumswohnung wird bei Verkauf frei und ist somit für Selbstnutzer als auch für Investoren geeignet! In der Nähe des Stadtzentrums, in einem unterkellerten, villenartigen Reihen-Mehrfamilienhaus mit schönem Angesicht und eigenem Kfz-Stellplatz wird eine kompakt aufgeteilte Wohnung mit Balkon im 2. Obergeschoss rechts verkauft – aufgeteilt in drei Zimmer, innliegendem kleinen Bad mit Wanne, Toilette, Abstellraum, offene Küche mit Sichtbalken als Raumteiler und Balkon. Insgesamt verfügt das Haus über neun Wohneinheiten.

Fakten

Typ
Wohnung
Baujahr
1930
Alt-/Neubau
Altbau
Zimmer
3
Wohnfläche ca.
73 m²
Gesamtfläche ca.
Etage
3
Etagenanzahl
5
Grundstücksfläche ca.
Preis
266.000 €
Kaltmiete
Warmmiete
Käuferprovision
3,57 %
Verfügbar ab
sofort
Immobilien-ID
130825904

Ausstattung

Das Haus wurde 1995 modernisiert und in Wohneigentum aufgeteilt. Es ist massiv gebaut mit Holzzwischendecken, hat 2-fach verglaste Kunststofffenster, Außenfensterbänke in Aluminium, innen Naturstein, Abflussrohre in Kunststoff, Regenrinnen und Fallrohre aus Zink, Wärmedämmung in den Dachschrägen, Dachboden ausgebaut, WM-Raum im Keller, Gaszentralheizung von 1995, Außenwände im EG mit ca. 8 cm Dämmung versehen. Der Hofbereich hinter dem Haus ist befestigt. Die Wohnung selbst wurde vor ca. fünf Jahren mit neuem Designboden versehen, das Bad erneuert, renoviert und eine Einbauküche verbaut.

Lage

Jena
,
07749
Die vollständige Adresse ist im Exposé einsehbar.
In der pulsierenden Universitätsstadt Jena, eine der dynamischsten und zukunftsorientiertesten Städten Mitteldeutschlands lässt es sich leben. Ein traditionsreicher Wissenschaftsstand-ort mit international renommierten Forschungseinrichtungen, ein wachsendes Zentrum für Hightech-Unternehmen, und eingebettet im reizvollen Saaletal. Die Autobahn sowie das nahegelegene „Hermsdorfer Kreuz“ sorgen für gute Anbindung in alle Richtungen.

Grundrisse

No items found.
Silke Sommer - Inhaberin der Makleragentur Sommer Immobilien in Ihrem Büro Lutherplatz 6 in Eisenach

Silke Sommer

Ihre Ansprechpartnerin
Thank you! Your submission has been received!
Oops! Something went wrong while submitting the form.
266.000 €
Preis
Kaltmiete
Gesamtfläche ca.
73 m²
Wohnfläche ca.
Grundstück ca.
3
Zimmer