Außenansicht
No items found.
Gallerie ansehen

Charmante Südstadtvilla mit zwei Wohneinheiten

Eisenach
,
99817
494.000 €
Preis
Kaltmiete
Gesamtfläche ca.
332 m²
Wohnfläche ca.
435 m²
Grundstück ca.
10
Zimmer
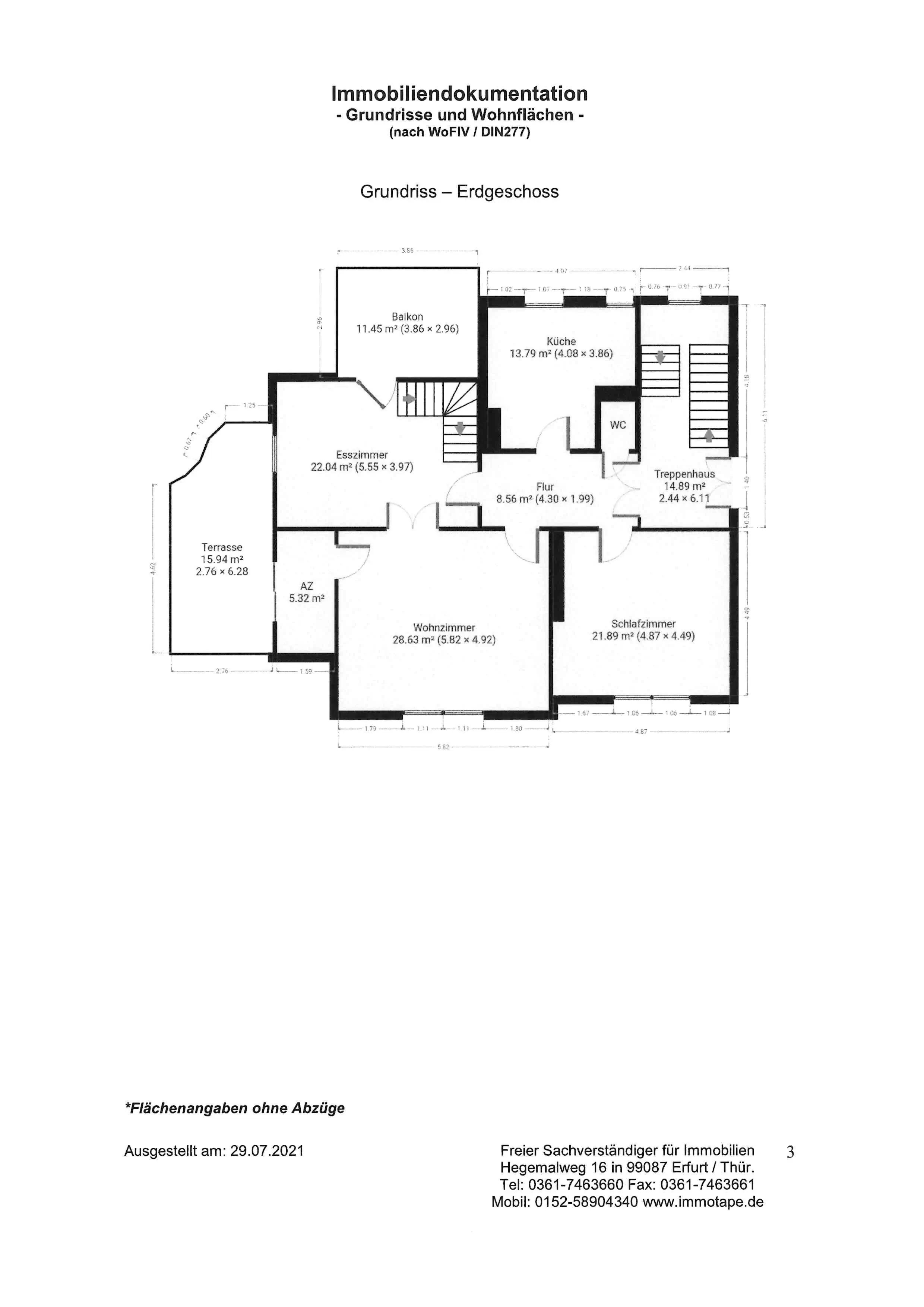
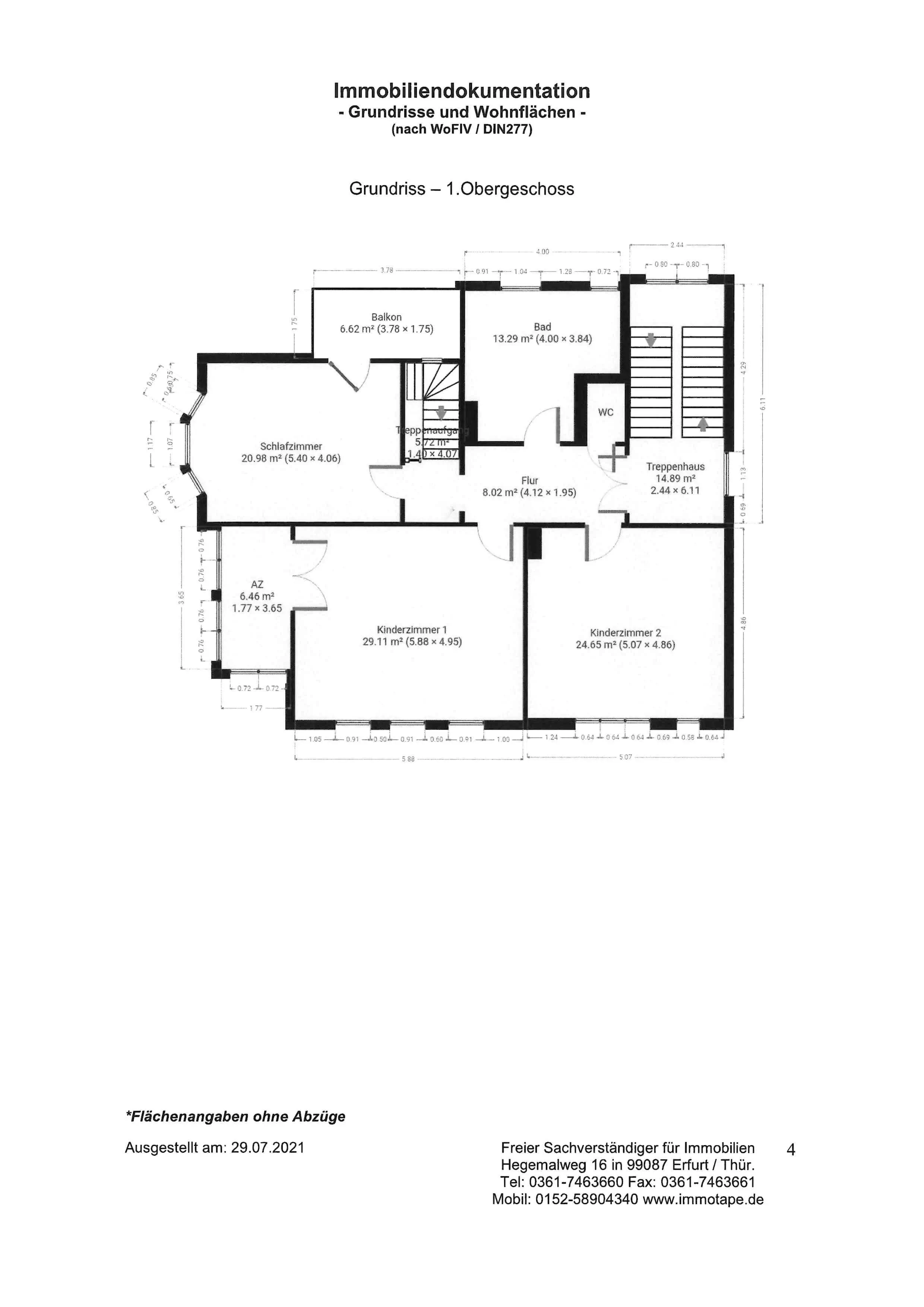
Hier stehe ich – so präsentiert sich das gepflegte Zweifamilienhaus mit Schmuckfassadenelementen aus der Gründerzeit im gefragten Eisenacher Südviertel. Ein Schmuckstück mit nur zwei Wohneinheiten, gemütlichem Garten, befestigtem Hof- und Zufahrtsbereich sowie einem Doppelcarport. Beide Wohnungen sind langfristig vermietet. Die Maissonette-Wohnung verfügt im EG über Terrasse und Balkon, im 1. OG über Balkon, Erker und Wintergarten. Aufgeteilt ist die Wohnung in Wohnküche, Esszimmer, Wohnzimmer, drei Schlafzimmer, zwei davon mit Ankleide, 2x Gäste-WC sowie Tageslichtbad mit Wanne, Dusche und Handtuchtrockner. Die Maissonette-Wohnung im 2. OG verfügt über Fachwerkelemente, eine Wohnküche mit Zugang zum Balkon, Wohnzimmer, Schlafzimmer, ein schickes Tageslichtbad mit Wanne und Dusche, Handtuchtrockner, ein separates Gäste-WC sowie einem sehr geräumigen Kinderzimmer im DG, erreichbar über eine Raumspartreppe.

Fakten

Typ
Haus
Baujahr
1907
Alt-/Neubau
Altbau
Zimmer
10
Wohnfläche ca.
332 m²
Gesamtfläche ca.
Etage
Etagenanzahl
4
Grundstücksfläche ca.
435 m²
Preis
494.000 €
Kaltmiete
Warmmiete
Käuferprovision
3,57 %
Verfügbar ab
sofort
Immobilien-ID
130825865

Energieinformationen

Energieausweistyp
Heizungsart
Gas
Baujahr laut Energieausweis
1907
Endenergiebedarf
Energieeffizienzklasse

Ausstattung

Die Villa wurde 1994 modernisiert. Im EG/OG ist teilweise Laminat, tw. Parkett verlegt. Die obere Wohnung wurde mit Laminat versehen. Ein Keller- und ein Partyraum sind dem Wohnrecht zugeordnet, ein Keller der oberen Wohnung. Die Wohnungen sind jeweils mit Gas-Thermen ausgestattet, welche 2008 eingebaut wurden. Im Heizungsraum befindet sich Fabrikat Brötje TE 23 C, im 2. OG Fabrikat Vissmann Vitopend 200.

Lage

Eisenach
,
99817
Die vollständige Adresse ist im Exposé einsehbar.
Die denkmalgeschützte Villenkolonie Südviertel im Süden Eisenachs ist eines der großen zusammenhängenden Villengebiete in Deutschland, welches zwischen 1862 und dem Ersten Weltkrieg entstand. Zu dieser Zeit war Eisenach ein Anziehungspunkt für wohlhabende Geheimräte, Fabrikbesitzer und Militärs sowie Pensionäre und Bürgerliche der Region wegen der landschaftlich schönen Lage am Thüringer Wald, der historischen Wartburg und des Kurbetriebs. Es entstanden mehr als 100 meist herrschaftliche Villen in unterschiedlichen architektonischen Stilrichtungen. Das Südviertel umfasst die Kolonien von Predigerhöhe, Marienhöhe, Karthäuserhöhe, Mariental sowie Bereiche am Rhododendrongarten und der Waldschänke, die Gegend unterhalb der Wartburg. Bis zur Autobahn fährt man ca. 15 Minuten. Der Bahnhof ist fußläufig in 15 Minuten erreichbar.

Grundrisse

No items found.
Silke Sommer - Inhaberin der Makleragentur Sommer Immobilien in Ihrem Büro Lutherplatz 6 in Eisenach

Silke Sommer

Ihre Ansprechpartnerin
Thank you! Your submission has been received!
Oops! Something went wrong while submitting the form.
494.000 €
Preis
Kaltmiete
Gesamtfläche ca.
332 m²
Wohnfläche ca.
435 m²
Grundstück ca.
10
Zimmer