Charmante Südstadtvilla mit zwei Wohneinheiten
Eckdaten
- Art Mehrfamilienhaus
- Lage 99817 Eisenach
- Kaufpreis 494.000,00 €
- Kaufpreis pro m² 1.486,29 €
- Preis auf Anfrage nein
- Nebenkosten 120,00 €
- Wohnfläche ca. 332 m²
- Grundstück ca. 435 m²
- Zimmer 10
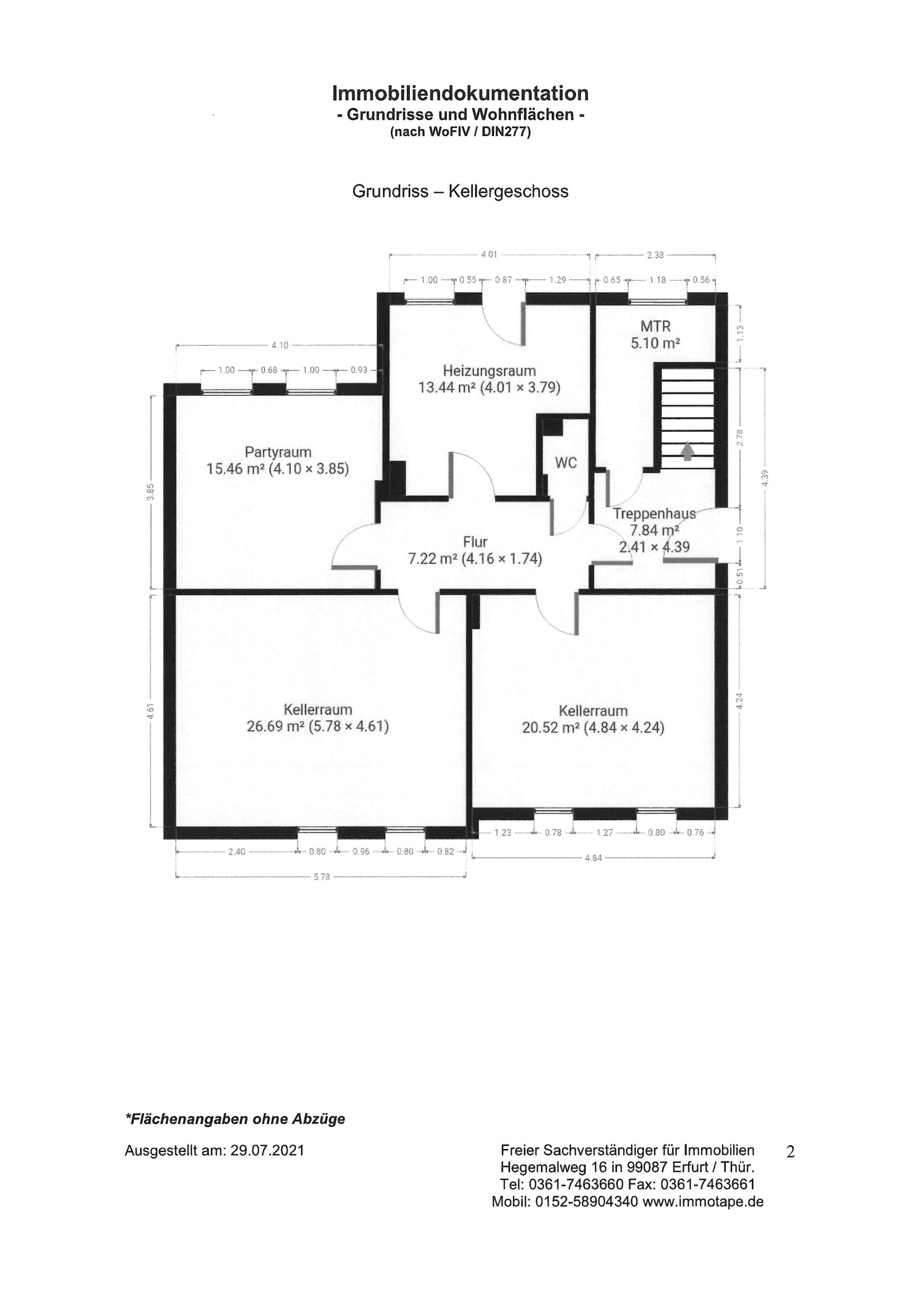
- Kellerfläche ca. 83 m²
- Baujahr 1907
- Etagenzahl 4
- Alt-/Neubau Altbau
- Denkmalschutzobjekt nein
- Heizungsart Etagenheizung
- Einbauküche ja
- Gäste-WC ja
- Anzahl Balkone 3
- Stellplatztyp Carport
- Stellplatzanzahl 3
- Vermietet ja
- Bezugstermin sofort
- Fahrzeit Hauptbahnhof 5 min
- Fahrzeit nächste Autobahnauffahrt 15 min
- Fahrzeit nächster Flughafen 60 min
- Bodenbelag Laminat Fliesen Parkett
- Ausstattung des Bades Fenster Badewanne Dusche
- Zustand Gepflegt
- Immobilien-ID 130825865
- Provision 3,57 % inkl. MwSt.
Immobilie
Hier stehe ich – so präsentiert sich das gepflegte Zweifamilienhaus mit Schmuckfassadenelementen aus der Gründerzeit im gefragten Eisenacher Südviertel. Ein Schmuckstück mit nur zwei Wohneinheiten, gemütlichem Garten, befestigtem Hof- und Zufahrtsbereich sowie einem Doppelcarport. Beide Wohnungen sind langfristig vermietet.
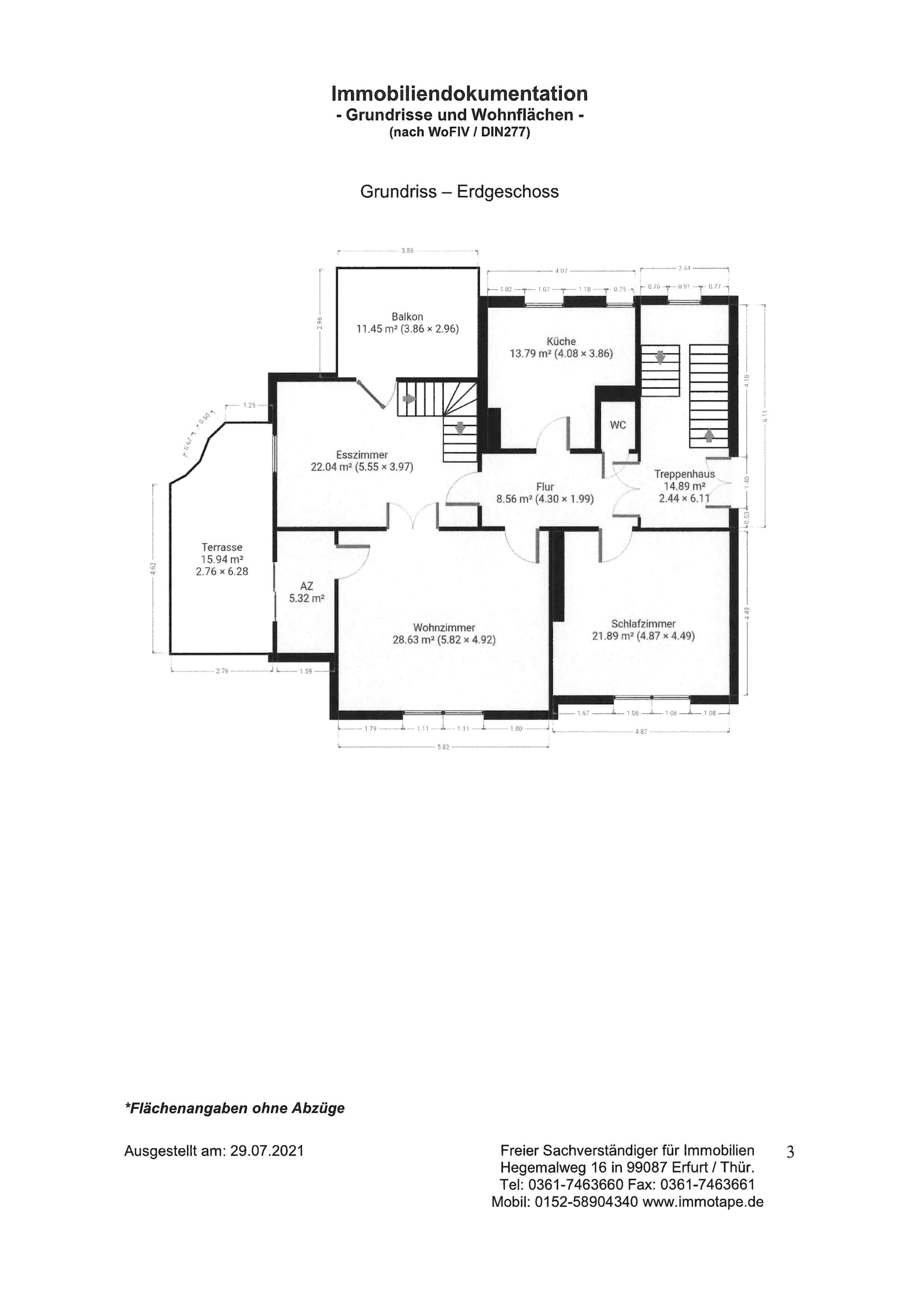
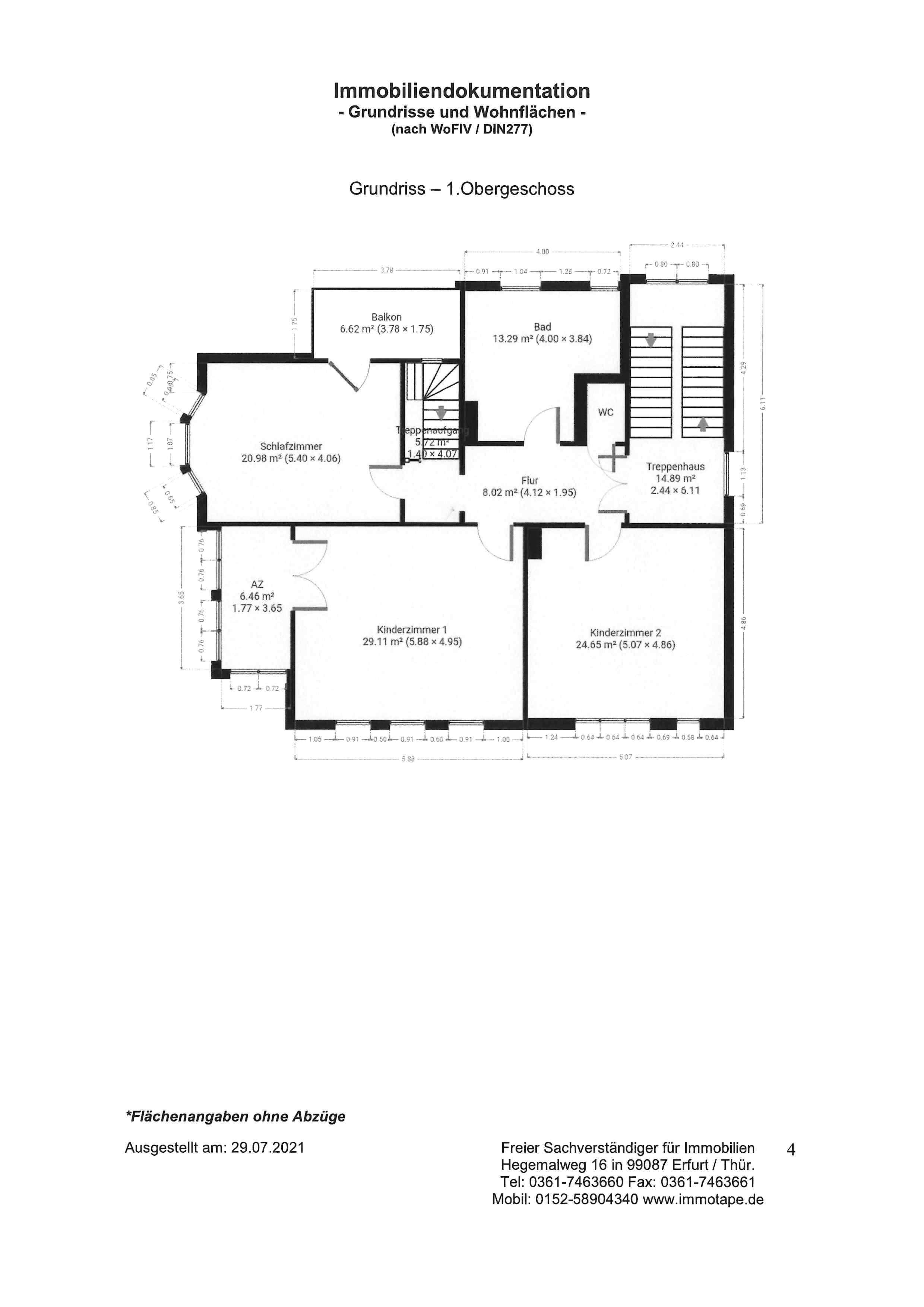
Die Maissonette-Wohnung verfügt im EG über Terrasse und Balkon, im 1. OG über Balkon, Erker und Wintergarten. Aufgeteilt ist die Wohnung in Wohnküche, Esszimmer, Wohnzimmer, drei Schlafzimmer, zwei davon mit Ankleide, 2x Gäste-WC sowie Tageslichtbad mit Wanne, Dusche und Handtuchtrockner.
Die Maissonette-Wohnung im 2. OG verfügt über Fachwerkelemente, eine Wohnküche mit Zugang zum Balkon, Wohnzimmer, Schlafzimmer, ein schickes Tageslichtbad mit Wanne und Dusche, Handtuchtrockner, ein separates Gäste-WC sowie einem sehr geräumigen Kinderzimmer im DG, erreichbar über eine Raumspartreppe.
Lage
Die denkmalgeschützte Villenkolonie Südviertel im Süden Eisenachs ist eines der großen zusammenhängenden Villengebiete in Deutschland, welches zwischen 1862 und dem Ersten Weltkrieg entstand. Zu dieser Zeit war Eisenach ein Anziehungspunkt für wohlhabende Geheimräte, Fabrikbesitzer und Militärs sowie Pensionäre und Bürgerliche der Region wegen der landschaftlich schönen Lage am Thüringer Wald, der historischen Wartburg und des Kurbetriebs. Es entstanden mehr als 100 meist herrschaftliche Villen in unterschiedlichen architektonischen Stilrichtungen. Das Südviertel umfasst die Kolonien von Predigerhöhe, Marienhöhe, Karthäuserhöhe, Mariental sowie Bereiche am Rhododendrongarten und der Waldschänke, die Gegend unterhalb der Wartburg.
Bis zur Autobahn fährt man ca. 15 Minuten. Der Bahnhof ist fußläufig in 15 Minuten erreichbar.
Ausstattung
Die Villa wurde 1994 modernisiert. Im EG/OG ist teilweise Laminat, tw. Parkett verlegt. Die obere Wohnung wurde mit Laminat versehen. Ein Keller- und ein Partyraum sind dem Wohnrecht zugeordnet, ein Keller der oberen Wohnung. Die Wohnungen sind jeweils mit Gas-Thermen ausgestattet, welche 2008 eingebaut wurden. Im Heizungsraum befindet sich Fabrikat Brötje TE 23 C, im 2. OG Fabrikat Vissmann Vitopend 200.
Sonstiges
Die EG/1.OG-Wohnung ist durch ein eingetragenes Wohnrecht unkündbar.
Energieausweisangaben
- Heizungsart Etagenheizung
- Befeuerung / Energieträger Gas
Herzlichen Dank für Ihre Anfrage.
Wir werden diese so schnell wie möglich bearbeiten.




